Вкратце
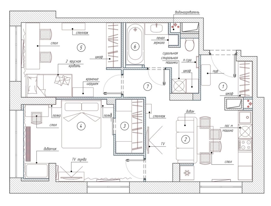
Когда дизайнер Вера Шеверденок познакомилась с заказчиками, они ожидали второго ребенка. Основная задача была — из двухкомнатной квартиры с маленькой кухней сделать евротрешку — проходную кухню-гостиную плюс две изолированные комнаты. При спальне организовать гардеробную, а в детской разместить двуспальную кровать для дочек.
Подробности
«Большая удача в том, что квартира находится на втором этаже, а под ней — нежилые коммерческие помещения, это дает больше вариантов для перепланировки, — рассказывает автор проекта. — В квартире от застройщика не было стен, была трассировка. К кухне мы присоединили часть жилой комнаты, таким образом организовав кухню-гостиную.
Для того, чтобы сохранить достаточную площадь спальни, пришлось присоединить к ней лоджию. Постирочную организовали на месте коридора с доступом из ванной комнаты».
Кухню делали под заказ, базы стандартные по 60 см шириной. Шкафы довели до потолка, организовав антресольную часть. Глухие верхние фасады сочетаются со стеклянными фасадами с подсветкой. Для духовки и микроволновки предусмотрели колонну слева от окна. Напротив — встроенный холодильник, спрятанный за монолитной колонной.
Для отделки выбрали материалы, которые подходят для скандинавского стиля, — краску и инженерную доску. В зоне кухни использовали плитку в форме гексагонов — ее было непросто соединить с доской, но рабочие справились. В ванной комнате стены отделали керамогранитом.
Корпусную мебель делали на заказ, остальную нашли в наличии в шоурумах и в интернет-магазинах. Для спальни выбрали кровать с мягким изголовьем, а для двух дочек поставили кровать-домик с двумя ярусами — детям будет комфортно и уютно спать в ней.
Бренды, представленные в проекте
Холл
Напольное покрытие: плитка, Equipe
Кухня-гостиная
Отделка: краска, Little Greene
Мебель: журнальный столик, Cosmorelax; гарнитур, столярная мастерская «Мебель королей»
Освещение: бра над диваном, Arte Lamp
Спальня
Мебель: комод, The Idea
Освещение: подвес над кроватью, Cosmorelax
Ванная комната
Отделка: Rodano Acero; Porcelanosa; Atlas Concorde
Сантехника: унитаз и умывальник, Duravit; инсталляция, Geberit; гигиенический душ, Giulini; ванна, Villeroy & Boch
Смесители: Hansgrohe
Хотите, чтобы ваш проект был опубликован на INMYROOM? Присылайте фотографии интерьера на wow@inmyroom.ru

